Gå til: Plantegninger | Fasade | Kontaktskjema
222 – LISBON
FUNKIS PÅ SITT ALLER BESTE
Lisbon er en ekstraordinær funkisvilla hvor ingenting mangler. Boligen kombinerer elementer av tre, fasadeplater og store vindusflater for et moderne uttrykk.
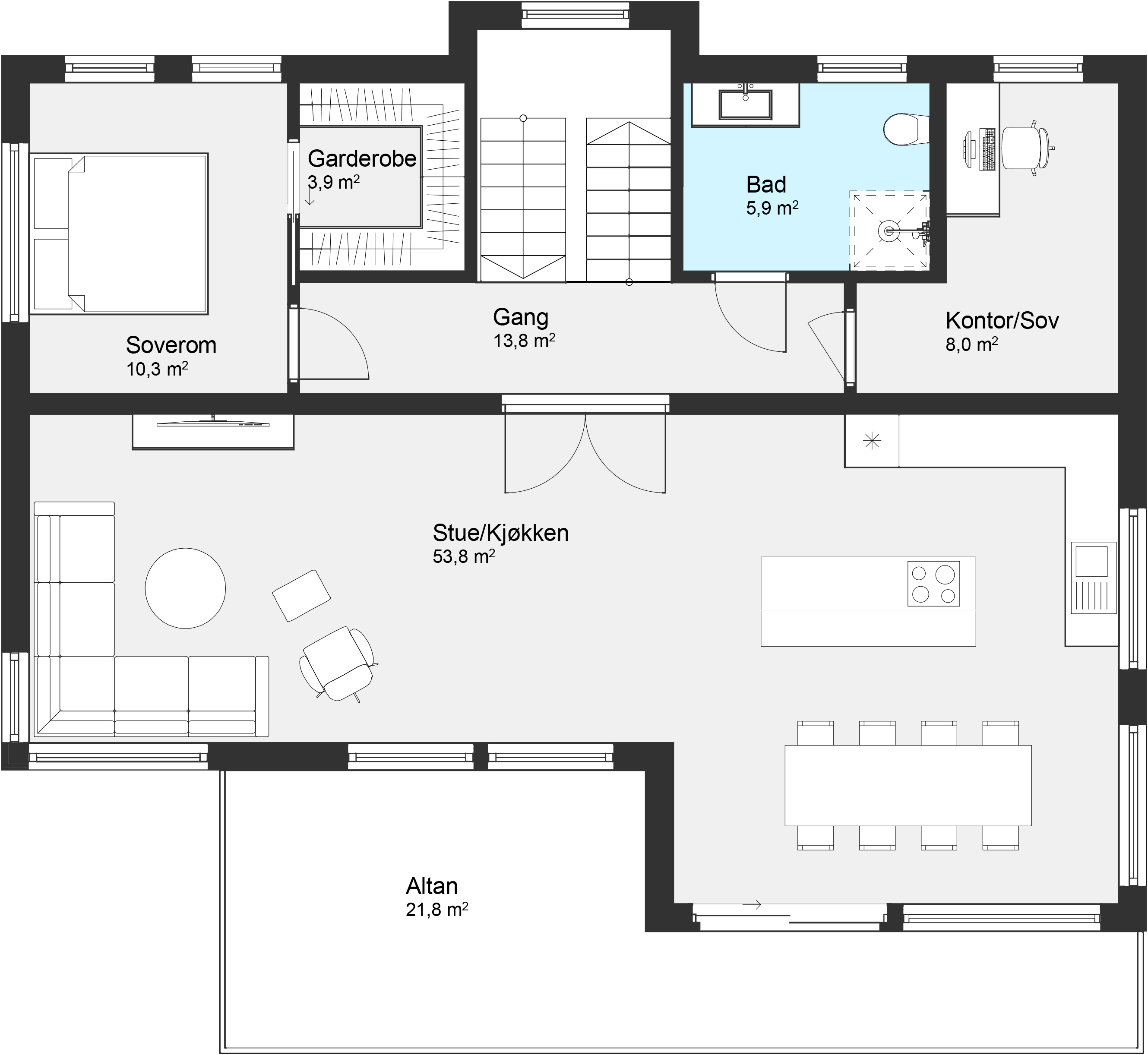
Boligen har fem soverom, tre i første etasje og to i andre – hvorav hovedsoverommet har både walk-in garderobe og bad. Stue- og kjøkkenløsningen i andre etasje har direkte utgang til altan og gir et åpent oppholdsrom med mye lys og utsikt.
Lisbon passer perfekt for deg som ønsker noe som skiller seg ut – både i uttrykk og bokvalitet – og som setter pris på moderne løsninger og god romfølelse.
TEKNISK DATA
ØNSKER DU MER INFORMASJON?
FYLL UT SKJEMAET, SÅ KONTAKTER VI DEG FOR EN HYGGELIG BOLIGPRAT
ARKITEKT
ALT KAN TILPASSES FOR Å IMØTEKOMME DERES ØNSKER OG BEHOV
Fordelene med å bygge et helt nytt hus, er at du kan få det akkurat slik som du vil. Trolig finner du en husmodell i vår katalog som kan passe, men kanskje ønsker du å tilpasse boligen etter egne ønsker og behov.
Vi vil gjøre vårt ytterste for at du skal bi fornøyd, og hjelper deg hele veien fra idé til ferdig bolig. Vi har fagkunnskap og gir gode råd for at du skal få bygget en bolig som passer deg helt perfekt.







