Gå til: Plantegninger | Fasade | Kontaktskjema
315 – INSTELHAUG
Hytte med god takhøyde.
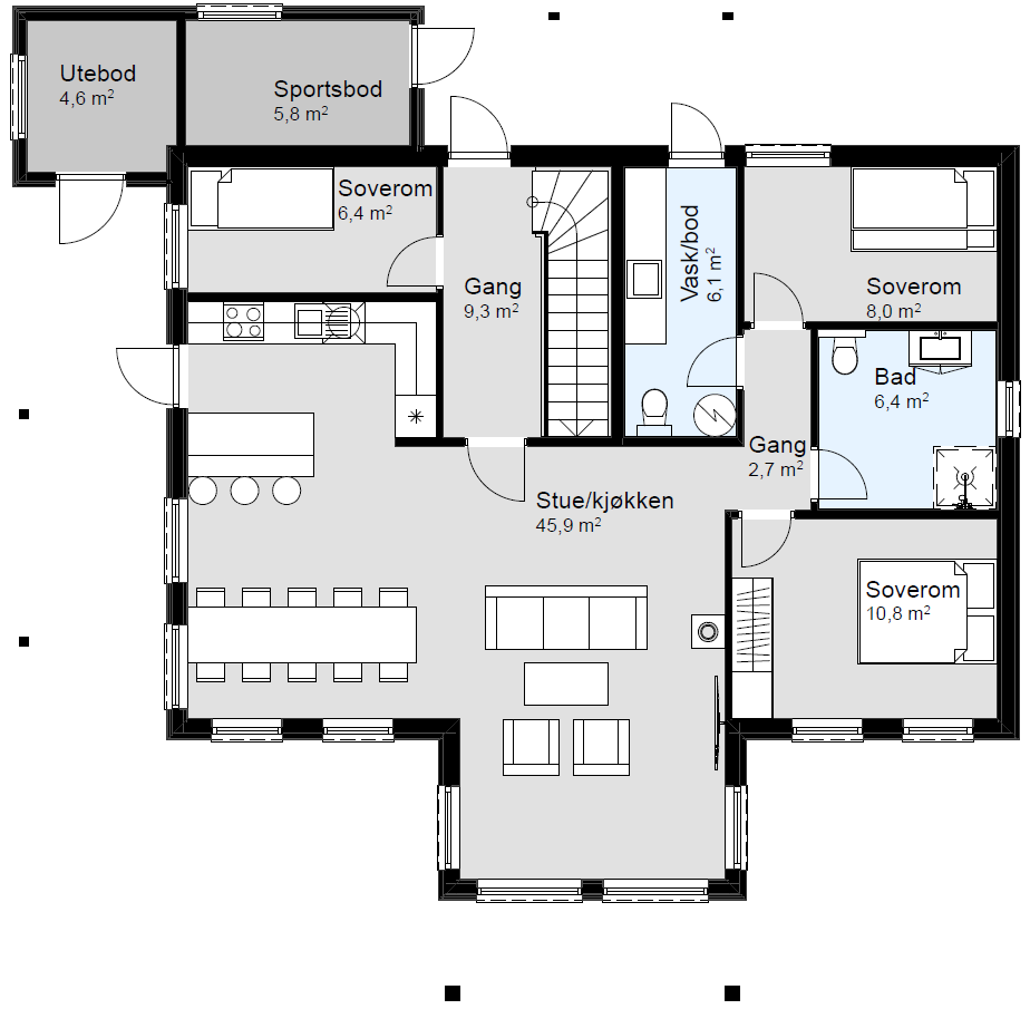
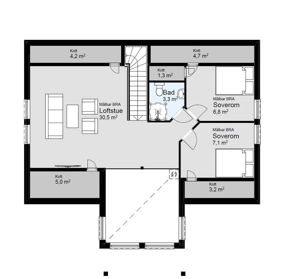
Instelhaug gir rom for å samle hele storfamilien, med hele fem soverom og en praktisk og god loftsstue. Den åpne og romslige stue-/kjøkkensonen på over 45m2 skaper rom for hyggelige samtaler og gode øyeblikk. Her løfter også taket seg over fem meter opp, som gjør at den vakre naturen inn inviteres inn gjennom de store vinduene.
Fra kjøkkene kan du ta deg ut på hyttens overbygde uteplass, hvor du kan nyte en deilig kaffekopp til ro og stillhet.
TEKNISK DATA
PLANTEGNINGER
ØNSKER DU MER INFORMASJON?
FYLL UT SKJEMAET, SÅ KONTAKTER VI DEG FOR EN HYGGELIG BOLIGPRAT
ARKITEKT
ALT KAN TILPASSES FOR Å IMØTEKOMME DERES ØNSKER OG BEHOV
Fordelene med å bygge et helt nytt hus, er at du kan få det akkurat slik som du vil. Trolig finner du en husmodell i vår katalog som kan passe, men kanskje ønsker du å tilpasse boligen etter egne ønsker og behov.
Vi vil gjøre vårt ytterste for at du skal bi fornøyd, og hjelper deg hele veien fra idé til ferdig bolig. Vi har fagkunnskap og gir gode råd for at du skal få bygget en bolig som passer deg helt perfekt.







